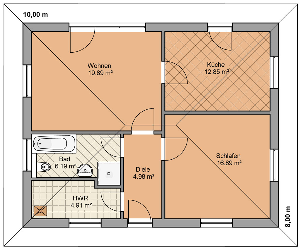
Bungalow Typ 66
- Wohnfläche: 65,72 m²
- bebaute Fläche: 80,00 m²
- Dachneigung: 25°
- Dachüberstand: 75 cm
- Putz- & Klinkerfassade
- frostfreie Gründung
- Fundamente und Bodenplatte in WU-Beton
- individuelle Planung möglich
Fakten als PDF downloaden
Beratung / Empfehlung:
Die Veröffentlichung der Informationen stellt keine Beratung dar und daher auch keine Empfehlung zum Kauf bzw. zum Verkauf einer Ware, einer Dienstleistung etc. Die hier bereitgestellten Dokumente/Informationen sind ausschließlich zur Information bestimmt. Die Dokumente/Informationen können durch aktuelle Entwicklungen überholt sein, ohne dass die bereitgestellten Dokumente/Informationen geändert wurden.
Die in diesen Seiten ausgewiesene Wohnfläche entspricht der nach DIN 277 ermittelten Nettogrundfläche und enthält sowohl die Grundflächen mit einer Raumhöhe über 1,50 m als auch die gesondert ermittelten Grundflächen mit einer Raumhöhe von 1,50 m und darunter. Die Größe der Grundfläche, deren Raumhöhe 1,50 m oder weniger beträgt, wird auf Anfrage mitgeteilt. Wir weisen ausdrücklich darauf hin, dass die angegebenen Flächen konstant und von der jeweiligen Wandkonstruktion unabhängig sind.

